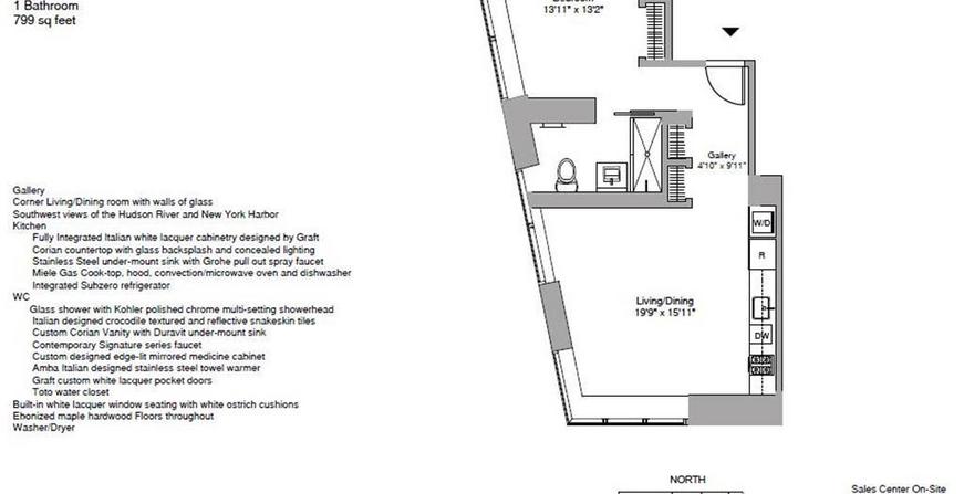
Descrizione
RARE OPPORTUNITY TO COMBINE THREE
UNIT INTO A ONE SPRAWLING APARTMENTINCLUDED IN THE SALE IS A 200, 000
$ CONSTRUCTION CREDITBring your architect. Views of
9/11 Memorial Park, Statue of Liberty, the river, city of Manhattan and beyond
from every window of your residence. W Hotel signature WHATEVER/WHENEVER ®
service and hotel amenities are available 24/7/365. David Rockwell designed
Lobby.
Listing Courtesy of The Nassimi
Group